De Zeehoek

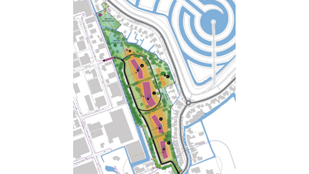
De Zeehoek is gelegen aan de oostkant van Wervershoof. Halverwege 2023 is zwembad De Zeehoek gesloten. De gemeente heeft de ambitie om het terrein om te vormen naar een aantrekkelijke en gevarieerde woningbouwlocatie. Er zullen 130 tot 140 koop- en huurwoningen gerealiseerd worden voor verschillende doelgroepen. Het oude zwembad ‘De Zeehoek’ is ook aangewezen als pilot voor circulair slopen.

Informatie-/participatieavond op 25 juni

Op 25 juni organiseerden we een informatie-/participatieavond voor zowel De Tegel als De Zeehoek. U kunt de presentatie ontvangen door via onderstaande knop. 

Planning

  1. Waar staan we nu?

    Status: Actief Opvolgingsnummer: 1

    De kaderstellende notitie is vastgesteld. Dit is een opdracht van de gemeenteraad met extra voorwaarden waaraan de ontwikkelaar moet voldoen, bovenop het bestaande beleid. De kaderstellende notitie is hier(Verwijst naar een externe website) te lezen.

  2. Wat is de volgende stap?

    Status: Toekomstig Opvolgingsnummer: 2

    We werken toe naar een Stedenbouwkundig Plan. Hiervoor vindt participatie plaats. Na vaststelling van het Stedenbouwkundig Plan wordt de ruimtelijke procedure voorbereid.